Торговые помещения площадью 350,00 м2, по цене 22000000 по адресу Маршала Жукова - 5/2

Цена 22 000 000 р.
Вид недвижимости Торговые помещения
Адрес Маршала Жукова, 5/2
Площадь помещения 350 м2
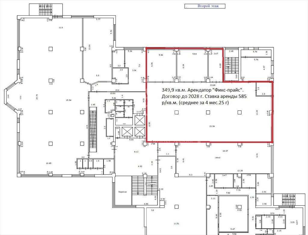
ПРОДАМ ВАМ ТОРГОВОЕ ПОМЕЩЕНИЕ С ФЕДЕРАЛЬНЫМ АРЕНДАТОРОМ! Площадь 350 кв.м, второй этаж ТЦ "Весна" , ул.М.Жукова, 5/2. Готовый бизнес без головной боли. Доход 215к/мес. от федерального бренда! Хватит мечтать о пассивном доходе — вот он! Продается не просто помещение, а готовый финансовый актив. Что вы покупаете? Вы покупаете договор аренды с федеральной компанией, которая уже платит от 215 000 рублей каждый месяц. Ваша задача — получать деньги на счет. Почему это крутая инвестиция? · ✅ Деньги уже здесь: По факту прошлого года арендатор платил в среднем 215 000 руб./мес. Нет рисков "а будет ли арендатор?" — он уже есть и платит. · ✅ Проверенный арендатор: Fix Price— имя, которое знают все. Риск невыплат сведен к нулю. · ✅ Финансовый "тормоз": Даже если у арендатора будут плохие месяцы, по договору он обязан платить вам МИНИМУМ 215 000 руб. (или больше, если у него высокий оборот!). Вы в плюсе при любом раскладе. · ✅ Никакой работы: Не нужно искать арендаторов, делать ремонт, решать их проблемы. Подписываете договор купли-продажи и начинаете получать платежи. Цифры говорят сами за себя: · Гарантия: от 215 000 руб./месяц. · Статистика: 215 000 руб./мес. — средний чек за прошлый год. · Годовой доход: от 2,58 млн рублей на вашем счету. Это не просто недвижимость. Это ваша личная "денежная машина" с федеральным двигателем. СТОИМОСТЬ ПРОДАЖИ 22 000 000 рублей, Документы готовы к продаже.
Объявление № 23568537
Дата подачи:
8 ноября 2025 г. 6:24
Дата обновления:
8 ноября 2025 г. 6:00
Просмотров 31 Хотите продать быстрее?

Продавец
Агентство недвижимости:
Ерилина Ольга
email: oyarilo08@gmail.com
Показать номер телефона
Пожаловаться
Комментарии:
Добавить